※上記情報は、随時更新を行っておりますが、更新手続きに時間がかかる場合があります。物件に関する最新情報、詳細情報、契約内容については、情報提供者までご確認をお願い申し上げます。
※物件のご購入やご活用の際は、各種法令を遵守しなければなりません。用途や目的に応じて関係法令は異なりますので、ご購入を検討の際は、不動産業者などへのご確認をお願いいたします。
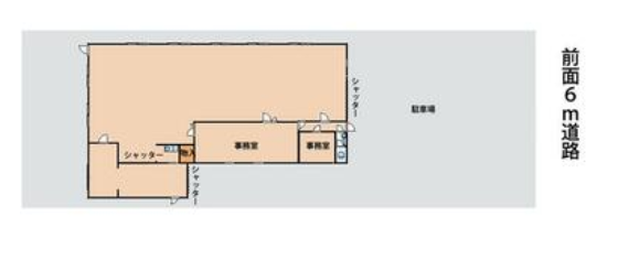
※解体更地渡し応談可
※上記情報は、随時更新を行っておりますが、更新手続きに時間がかかる場合があります。物件に関する最新情報、詳細情報、契約内容については、情報提供者までご確認をお願い申し上げます。
※物件のご購入やご活用の際は、各種法令を遵守しなければなりません。用途や目的に応じて関係法令は異なりますので、ご購入を検討の際は、不動産業者などへのご確認をお願いいたします。